| 募集区画 | 面積 | 賃料 | 共益費 | 管理費 | 保証金 | 敷金 | 敷引 | 礼金 | 入居可能日 |
|---|---|---|---|---|---|---|---|---|---|
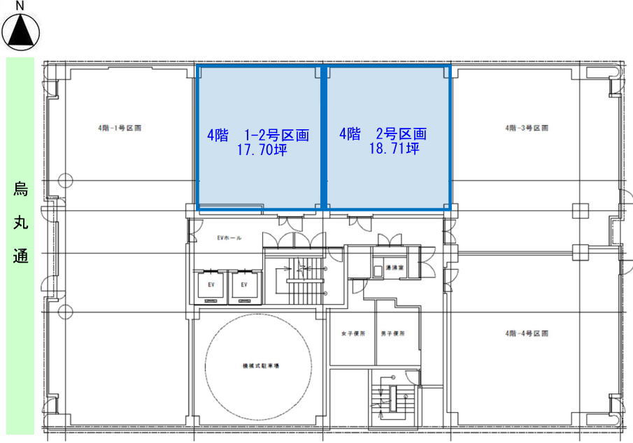
| 4階-1-2号区画 | 17.70坪 (58.53㎡ |
ご相談 | 賃料に含む | ご相談 | 成約済 | ||||
| 4階-2号区画 | 18.71坪 (61.88㎡) |
ご相談 | 賃料に含む | ご相談 | 即入居 |
| 最寄駅 |
JR線・新幹線「京都駅」 徒歩4分 |
||
|---|---|---|---|
| 構造・規模 | 鉄骨鉄筋コンクリート造地下1階地上9階建 | 竣工 | 平成1年2月 |
| 賃 料 | ご相談 | 面積 | 17.70坪 |
| 共益費 | 賃料に込み | 敷金又は保証金 | 敷金:ご相談 |
| 備考 | ・普通借家契約 | ||
| 設備等 |
■ エレベーター ■ OAフロア ■ 機械警備 ■ 個別空調 ■ 新耐震基準 ・機械式立体駐車場(空確認要) |
||










京都市の四条烏丸、烏丸御池、京都駅、四条河原町、木屋町、先斗町、祇園、四条大宮、西院が取り扱いエリアです。
テナントの賃貸物件、貸事務所、SOHOオフィス、貸店舗、居抜き物件、京町家、京町屋を専門にご紹介しております。
★烏丸通に面す
・飲食店、給排水設備を要する店舗のご利用不可