| 募集区画 | 面積 | 賃料 | 共益費 | 管理費 | 保証金 | 敷金 | 敷引 | 礼金 | 入居可能日 |
|---|
| 最寄駅 | 地下鉄東西線「東山駅」徒歩4分 | ||
|---|---|---|---|
| 構造・規模 | 鉄筋コンクリート造陸屋根7階建 | 竣工 | 平成20年1月 |
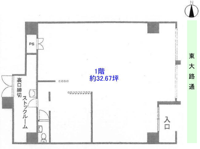
| 賃 料 | 470,000円(税込) | 面積 | 約32.67坪(壁芯108㎡) |
| 共益費 | 5,500円(税込) | 敷金又は保証金 | 敷金:470,000円 礼金:470,000円 |
| 備考 | ・3年契約 更新料:無し 更新時事務手数料:15,000円(税別) ・電気:直接契約 ・水道代:事務所利用の場合月額5,500円 *業種により変更有り ・指定火災保険加入要(*別途保険料要) ・家賃保証会社(ジェイリース)加入要(*別途保証料、口座振替手数料:330円 要) |
||
| 設備等 |
・電気 |
||




京都市の四条烏丸、烏丸御池、京都駅、四条河原町、木屋町、先斗町、祇園、四条大宮、西院が取り扱いエリアです。
テナントの賃貸物件、貸事務所、SOHOオフィス、貸店舗、居抜き物件、京町家、京町屋を専門にご紹介しております。
★東大路通に面す
★間口約9.6m
・ペット関連店舗、レンタル着物、飲食店不可
・令和7年12月以降入居可能予定