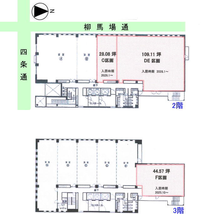
| 募集区画 | 面積 | 賃料 | 共益費 | 管理費 | 保証金 | 敷金 | 敷引 | 礼金 | 入居可能日 |
|---|---|---|---|---|---|---|---|---|---|
| 2階C区画 | 28.08坪 | ご相談 | ご相談 | 賃料の12ヶ月分 | 令和8年1月~ 入居可能予定 |
||||
| 2階DE区画 | 109.11坪 | ご相談 | ご相談 | 賃料の12ヶ月分 | 令和8年1月~ 入居可能予定 |
||||
| 3階F区画 | 44.57坪 | ご相談 | ご相談 | 賃料の12ヶ月分 | 即入居 |
*賃料・共益費には別途消費税がかかります。
| 最寄駅 |
阪急京都線「烏丸駅」徒歩5分・「河原町駅」徒歩5分 地下鉄烏丸線「四条駅」徒歩5分 |
||
|---|---|---|---|
| 構造・規模 | 鉄骨造10階建塔屋1階 | 竣工 | 平成14年2月 |
| 賃 料 | ご相談 | 面積 | 28.08坪~109.11坪 |
| 共益費 | ご相談 | 敷金又は保証金 | 敷金:賃料の12ヶ月分 |
| 備考 | ・駐車料金 月額:45,000円/台(税別) 敷金:賃料の3ヶ月分 *空確認要 | ||
| 設備等 |
・個別空調 |
||






京都市の四条烏丸、烏丸御池、京都駅、四条河原町、木屋町、先斗町、祇園、四条大宮、西院が取り扱いエリアです。
テナントの賃貸物件、貸事務所、SOHOオフィス、貸店舗、居抜き物件、京町家、京町屋を専門にご紹介しております。
★四条通に面す