| 募集区画 | 面積 | 賃料 | 共益費 | 管理費 | 保証金 | 敷金 | 敷引 | 礼金 | 入居可能日 |
|---|---|---|---|---|---|---|---|---|---|
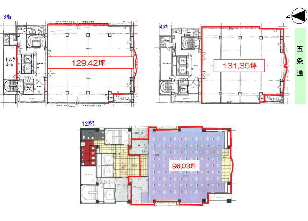
| 4階 | 131.35坪 | ご相談 | ご相談 | 賃料の12ヶ月分 | 即入居 | ||||
| 8階 | 129.42坪 | ご相談 | ご相談 | 賃料の12ヶ月分 | 即入居 | ||||
| 12階 | 96.03坪 | ご相談 | ご相談 | 賃料の12ヶ月分 | 即入居 |
| 最寄駅 | 京阪本線「清水五条」駅徒歩3分 | ||
|---|---|---|---|
| 構造・規模 | 鉄骨鉄筋コンクリート造地下1階、地上12階 | 竣工 | 平成3年10月 |
| 賃 料 | ご相談 | 面積 | 96.03坪、129.42坪、131.35坪 |
| 共益費 | ご相談 | 敷金又は保証金 | 敷金:賃料の12か月分 |
| 備考 | ・普通借家契約 契約期間:2年 ・電気使用料、冷暖房費 別途要 |
||
| 設備等 |
■ エレベーター ■ 機械警備 ■ 個別空調 ・ビル玄関開放時間 (正面玄関)月~金:8:30~19:00 (通用口)月~金7:30~19:00 |
||


京都市の四条烏丸、烏丸御池、京都駅、四条河原町、木屋町、先斗町、祇園、四条大宮、西院が取り扱いエリアです。
テナントの賃貸物件、貸事務所、SOHOオフィス、貸店舗、居抜き物件、京町家、京町屋を専門にご紹介しております。
★河原町五条、100坪超の大型オフィスビル
★8階はトランクルーム(約8.49坪)無償で使用可能