| 募集区画 | 面積 | 賃料 | 共益費 | 管理費 | 保証金 | 敷金 | 敷引 | 礼金 | 入居可能日 |
|---|---|---|---|---|---|---|---|---|---|
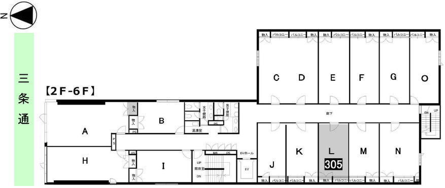
| 203 (J) |
約6.08坪 (20.09㎡) |
72,000円 | 13,000円 | 100,000円 | 令和7年9月中旬 退出予定 |
||||
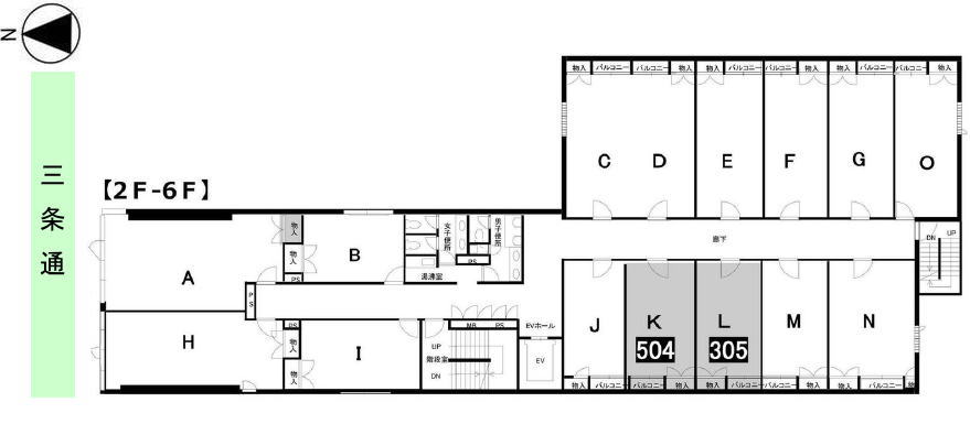
| 503 (J) |
約6.08坪 (20.09㎡) |
73,000円 | 13,000円 | 100,000円 | 成約済 | ||||
| 608 (A) |
約12.8坪 (42.35㎡) |
155,000円 | 20,000円 | 100,000円 | 成約済 |
*賃料・管理費には別途消費税がかかります。















★三条通に面す
★最上階角部屋
★無料Wi-Fi&プロジェクター導入の有料貸会議室有り