| 募集区画 | 面積 | 賃料 | 共益費 | 管理費 | 保証金 | 敷金 | 敷引 | 礼金 | 入居可能日 |
|---|
| 最寄駅 | 地下鉄烏丸線「丸太町駅」徒歩6分 | ||
|---|---|---|---|
| 構造・規模 | 鉄骨造陸屋根3階建 | 竣工 | 昭和59年7月10日 |
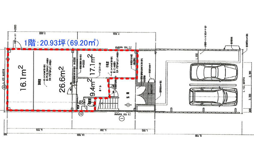
| 賃 料 | 250,000円(税別) | 面積 | 20.93坪(69.20㎡) |
| 共益費 | 8,000円(税別) | 敷金又は保証金 | 保証金:5ケ月分 |
| 備考 | ・2年契約 更新料無し ・保証会社加入要(別途保証料要) ・火災保険加入要(別途保険料要) ・保証金償却 2年未満:30%、2年以上~4未満:15%、4年以上~:0% ・駐車場 月額25,000円/台(税別) |
||
| 設備等 |
・WC:専用 |
||


京都市の四条烏丸、烏丸御池、京都駅、四条河原町、木屋町、先斗町、祇園、四条大宮、西院が取り扱いエリアです。
テナントの賃貸物件、貸事務所、SOHOオフィス、貸店舗、居抜き物件、京町家、京町屋を専門にご紹介しております。
★駐車場空1台有り
★平成28年リノベーション済み
・令和7年8月入居可能予定