| 募集区画 | 面積 | 賃料 | 共益費 | 管理費 | 保証金 | 敷金 | 敷引 | 礼金 | 入居可能日 | 
|---|---|---|---|---|---|---|---|---|---|
| 8階 ワンフロア  | 
					188.61坪 (623.51㎡)  | 
					ご相談 | 賃料に含む | ご相談 | 令和7年12月~ 入居可能予定 先行商談有  | 
					||||
| 5階 | 32.68坪 (108.04㎡)  | 
					ご相談 | 賃料に含む | ご相談 | 先行商談有 | ||||
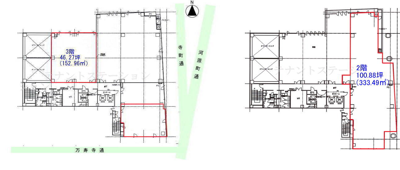
| 3階 | 46.27坪 (152.96㎡)  | 
					ご相談 | 賃料に含む | 賃料の12ヶ月分 | 即入居 | 
*賃料・共益費には別途消費税がかかります。
      | 最寄駅 | 
			京阪本線[五条駅]徒歩5分 阪急京都線「京都河原町駅」徒歩9分 地下鉄烏丸線「五条駅」徒歩9分  | 
          ||
|---|---|---|---|
| 構造・規模 | 鉄骨鉄筋コンクリート造 地上9階、地下1階 | 竣工 | 平成5年 | 
| 賃 料 | ご相談 | 面積 | 32.68坪~188.61坪 | 
| 共益費 | 賃料に含む | 敷金又は保証金 | ご相談 | 
| 備考 | |||
| 設備等 | 
			 
 ・セントラル空調(平日 9:00~18:00 土曜日 9:00~15:00)  | 
          ||










京都市の四条烏丸、烏丸御池、京都駅、四条河原町、木屋町、先斗町、祇園、四条大宮、西院が取り扱いエリアです。
      テナントの賃貸物件、貸事務所、SOHOオフィス、貸店舗、居抜き物件、京町家、京町屋を専門にご紹介しております。
★京都寺町通万寿寺角の貸事務所物件です
★8階ワンフロアは分割のご相談に応じます